Water heater 2 panel interior door (model specific)
Raised 30” white 2 panel interior doors throughout (where applicable)
Levered brushed nickel door knobs
Mortise interior door hinges throughout
White deluxe window & door casings throughout
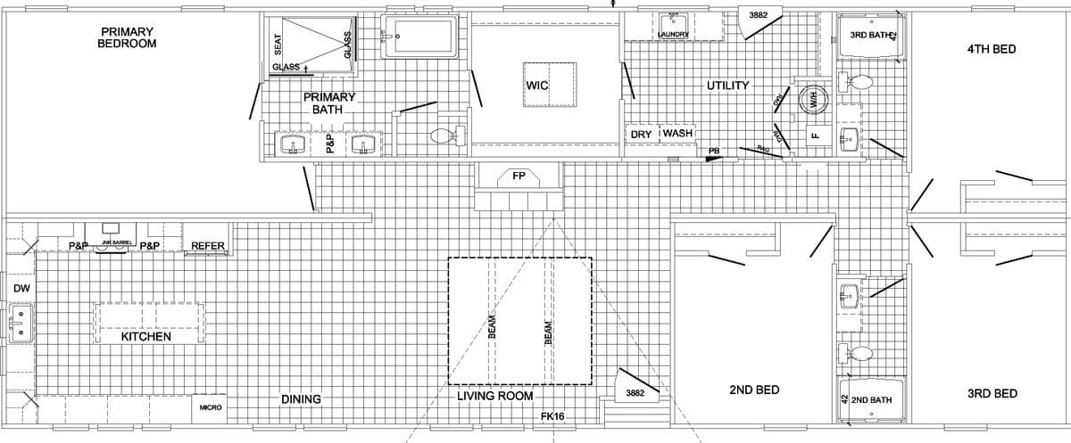
Republic Homes Tyler
As one of the oldest manufactured home retailers with over 40 years of industry expertise, we are committed to maintaining our reputation for excellence and innovation. Our promise to you will reflect our dedication to offering land and home packages, best-in-class custom-built homes, expert delivery services, and luxury living at affordable prices. These elements are integral to our mission of providing unparalleled value and customer satisfaction.
“Weathered wood” 3-tab shingled roof with 7/16” OSB roof decking
Can lights installed in soffit
White window lineals across front of home
White exterior bezzels
2” X 8” Floor Joist 16 O.C. (16’ Wide Floors)
3/4″ OSB sub-floor decking
2”X 4” exterior walls 16” O.C.
2”X 4” marriage walls 24” O.C.
Energy brace on marriage line
2” X 4” interior walls 16 O.C.
Fixed roof pitch (rafters 24” O.C. WZ 1&2)
8.5’ Sidewalls
22-13-38 Insulation
Doors & Windows
Water heater 2 panel interior door (model specific)
Raised 30” white 2 panel interior doors throughout (where applicable)
Levered brushed nickel door knobs
Mortise interior door hinges throughout
White deluxe window & door casings throughout
3882 8 Light front door (w/ storm)
3882 Inswing 1/2 glass rear door (w/ storm) with brushed nickel round door knob & deadbolt
Lux® Argon Gas Bronze Low-E Windows
Hardie fascia board
Vinyl siding w/ 7/16” OSB house wrap
Model specific exterior elevations
Whole house wrap underlayment
“Weathered wood” 3-tab shingled roof with 7/16” OSB roof decking
Can lights installed in soffit
White window lineals across front of home
White exterior bezzels
Kitchen
Samsung® Stainless Steel Appliances
Stainless steel side-by-side refrigerator
Smooth-top range
Stainless steel microwave
Stainless steel dishwasher
Hickory wood Cabinets
Pot & pan drawers in kitchen
Adjustable shelves in base & overhead cabinets
Rolled edge counter tops with one row ceramic backsplash
Hidden cabinet door hinges
Hammered steel cabinet pulls
Drawer over door construction
Samsung® Stainless Steel Appliances
Stainless steel side-by-side refrigerator
Smooth-top range
Stainless steel microwave
Stainless steel dishwasher
Hickory wood Cabinets
Pot & pan drawers in kitchen
Adjustable shelves in base & overhead cabinets
Rolled edge counter tops with one row ceramic backsplash
Hidden cabinet door hinges
Hammered steel cabinet pulls
Drawer over door construction
Bathroom
Interior
Shaw® carpet
5 LBS “energy” rebond carpet pad
Linoleum in wet areas and den areas (model specific)
Finished 1/2” sheetrock throughout
Stipple Finished Ceilings
Tray ceilings with ceiling beams
Ceramic backsplash in kit behind range
Wood burning/ electric fireplace (model specific)
2” White faux wood blinds throughout
White deluxe crown molding (except small closets)
White flat 2” crown & base in small closets
White deluxe baseboard molding (except small closets)
Wire shelving
Wood shelving with rod at washer & dryer area
White deluxe interior door & window trim throughout
Shaw® carpet
5 LBS “energy” rebond carpet pad
Linoleum in wet areas and den areas (model specific)
Finished 1/2” sheetrock throughout
Stipple Finished Ceilings
Tray ceilings with ceiling beams
Ceramic backsplash in kit behind range
Wood burning/ electric fireplace (model specific)
2” White faux wood blinds throughout
White deluxe crown molding (except small closets)
White flat 2” crown & base in small closets
White deluxe baseboard molding (except small closets)
Wire shelving
Wood shelving with rod at washer & dryer area
White deluxe interior door & window trim throughout
Images of homes are solely for illustrative purposes and should not be relied upon. Images may not accurately represent the actual condition of a home as constructed, and may contain options which are not standard on all homes.