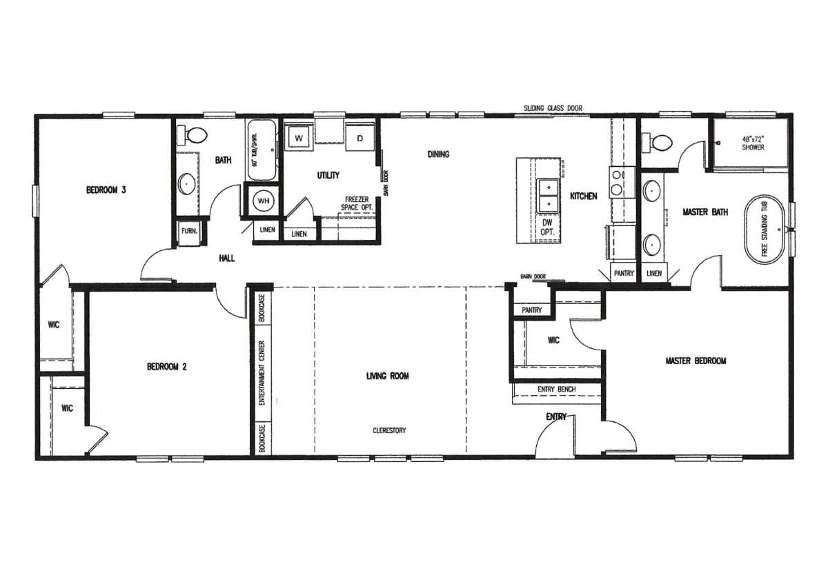
Homes | The Stephens (Inventory) | Tyler, TX